Działka budowlana
Znajdziemy działkę budowlaną.

Kompleksowa realizacja inwestycji: projektujemy,
załatwiamy pozwolenia, budujemy i urządzamy ogród.
Projektujemy domy dla ludzi z pomysłem na życie – dla dużych rodzin, dla par z wizją, dla tych, którzy pracują zdalnie, ale marzą o oddzieleniu pracy od codzienności. Dla tych, którzy chcą mieć basen, garaż na trzy auta, zielony dach albo taras, który latem staje się drugim salonem. Tu ma być miejsce na rodzinne kolacje, na poranne treningi, na Twój gabinet z widokiem na ogród. Na strefę relaksu z książką. Na saunę, pracownię malarską, pokój dla nastolatka, który chce mieć własne studio nagrań.
Zespół naszych architektów tworzy projekty domów, które są w pełni dopasowane do Ciebie, przemyślane, funkcjonalne, spersonalizowane – po prostu jedyne w swoim rodzaju.

Nasi architekci przygotują kompletny projekt indywidualny oraz projekt budynku usługowego, a następnie zajmą się formalnościami związanymi z uzyskaniem pozwolenia na budowę domu.
Znajdziemy działkę budowlaną.
Kompleksowo budujemy domy od A do Z.
Na cały zakres udzielamy 10 lat gwarancji.
W 35 lat wybudowaliśmy 2500 domów dla zadowolonych klientów.
Nasi architekci przygotują kompletny projekt indywidualny oraz projekt budynku usługowego, a następnie zajmą się formalnościami związanymi z uzyskaniem pozwolenia na budowę domu.
Umów rozmowę z architektem. Zadzwoń 48 504 125 130 lub napisz do nas kontakt@new-house.pl

Pierwsze spotkanie z architektem to kluczowy moment rozpoczynający cały proces projektowy. Jego celem jest dokładne poznanie potrzeb inwestora oraz określenie ram, w których będzie powstawał indywidualny projekt domu. Podczas rozmowy omawiamy przede wszystkim oczekiwania dotyczące wyglądu budynku, funkcji poszczególnych pomieszczeń oraz stylu życia, do którego dom ma być dopasowany. Ważnym elementem jest również analiza działki – jej położenia, wymiarów, ukształtowania terenu oraz obowiązujących warunków zabudowy lub planu miejscowego. Architekt pyta także o planowany budżet i przewidywany harmonogram prac projektowych oraz budowlanych, aby dostosować rozwiązania do realnych możliwości inwestora. Na koniec ustalamy zakres współpracy: od projektu koncepcyjnego, przez projekt budowlany, po ewentualną obsługę formalną, projekt wnętrz czy zagospodarowanie terenu. Ta rozmowa sprawia, że dalszy proces projektowy przebiega płynnie, a projekt powstaje w pełnej zgodzie z potrzebami Inwestora.
W ciągu 3 tygodni od pierwszego spotkania powstaje koncepcja domu, która staje się podstawą dalszych szczegółowych projektów.

Koncepcja projektu to fundament, na którym powstaje cały dom. To etap, w którym wspólnie z architektem określamy funkcję, układ pomieszczeń, bryłę budynku oraz sposób, w jaki dom będzie współgrał z działką i otoczeniem. Na tym etapie zapadają decyzje, które później decydują o komforcie, kosztach budowy i kosztach eksploatacji. W New-House koncepcja nie jest szkicem – to pogłębiona analiza Twojego stylu życia, wymogów działki, nasłonecznienia, MPZP/WZ oraz możliwości technicznych. Architekt tworzy kilka wariantów układu pomieszczeń i bryły, dopasowanych do terenu, stron świata i technologii budowy. Już na tym etapie eliminujemy błędy funkcjonalne, niepotrzebne koszty i ryzyka, które mogłyby pojawić się na budowie. Koncepcja obejmuje: szczegółową analizę działki i ograniczeń prawnych, układ funkcjonalny dopasowany do życia domowników, pierwszą wersję bryły i rozmieszczenia przeszkleń, założenia konstrukcyjne i instalacyjne, estetykę i kierunek stylistyczny domu,orientację budynku pod kątem energooszczędności. Dobrze przygotowana koncepcja daje 70% sukcesu całej inwestycji. To ona zapewnia, że projekt budowlany będzie spójny, budowa – przewidywalna, a gotowy dom – komfortowy, piękny i funkcjonalny. Dlatego w New-House traktujemy etap koncepcji jako najważniejszy moment projektowania.
Na podstawie koncepcji powstaje właściwy projekt architektoniczny. Ten projekt można złożyć do pozwolenia na budowę.

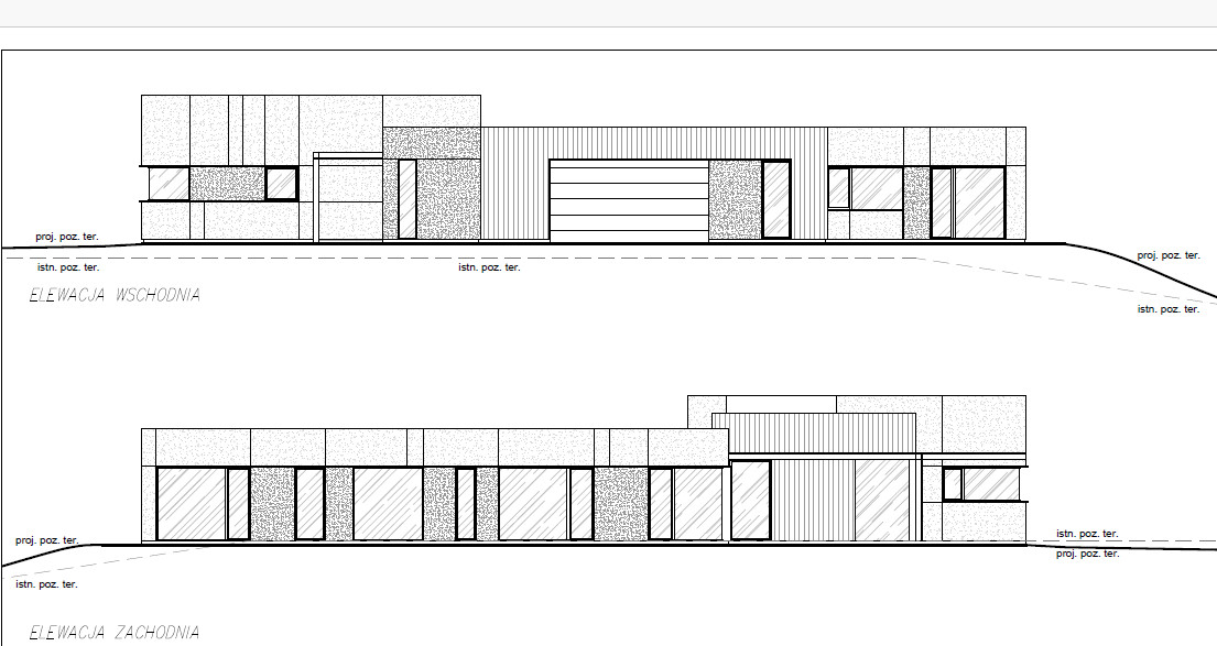
Projekt architektoniczny – kluczowy etap, który otwiera drogę do budowy. Projekt architektoniczny to najważniejsza część procesu projektowego i fundament całej inwestycji. W New-House przygotowujemy go w taki sposób, aby mógł od razu zostać złożony do **pozwolenia na budowę**. Na tym etapie powstają wszystkie rysunki, opisy, uzgodnienia i wymagane dokumenty, dzięki którym urzędnik może wydać decyzję pozytywną bez poprawek.
Zazwyczaj po 65 dniach od złożenia projektu architektonicznego i innych niezbędnych dokumentów do Gminy uzyskuje się pozwolenie na budowę. Pozwolenie na budowę otwiera drogę do wykonania projektów technicznych i samej budowy.

Pozwolenie na budowę – formalności, które New-House bierze na siebie. Uzyskanie pozwolenia na budowę to kluczowy moment całego procesu inwestycyjnego. W New-House przejmujemy na siebie całą obsługę formalną – od kompletowania dokumentów, przez uzgodnienia branżowe, aż po złożenie wniosku w urzędzie i prowadzenie całej sprawy do momentu wydania decyzji. Dzięki temu inwestor nie musi zajmować się procedurami administracyjnymi ani komunikacją z urzędami. Przygotowujemy projekt architektoniczny w takiej formie, aby mógł być od razu złożony do pozwolenia, a wszelkie wymagane załączniki, oświadczenia i opinie są kompletowane przez nasze biuro. Po uzyskaniu decyzji przechodzimy płynnie do opracowania projektu technicznego i dokumentacji wykonawczej, co pozwala rozpocząć budowę bez opóźnień. New-House zapewnia pełną koordynację – od pierwszej koncepcji po odbiór budynku – dzięki czemu cały proces przebiega szybko, prawidłowo i w pełnym komforcie dla Inwestora.
To projekt konstrukcyjny, projekty instalacji wodnych, kanalizacyjnych, ogrzewania domu, wentylacji, klimatyzacji, projekt instalacji elektrycznej Smart dom.

Projekt techniczny – szczegółowa dokumentacja, która prowadzi budowę krok po kroku. Projekt techniczny to etap, na którym powstaje pełna, szczegółowa dokumentacja niezbędna do prawidłowego prowadzenia budowy. W New-House przygotowujemy kompleksowe opracowania konstrukcyjne oraz projekty wszystkich instalacji: elektrycznych, sanitarnych, grzewczych, rekuperacji, fotowoltaiki i innych systemów wymaganych w nowoczesnym domu. To właśnie ta dokumentacja określa precyzyjnie, jak mają być wykonane poszczególne elementy budynku i z jakich materiałów korzystają ekipy wykonawcze. New-House zajmuje się pełną koordynacją całego procesu — od analiz konstrukcyjnych, przez uzgodnienia branżowe, po tworzenie rysunków wykonawczych. Nasze projekty techniczne powstają zawsze po uzyskaniu pozwolenia na budowę i stanowią bezpieczną podstawę realizacji inwestycji w standardzie premium. Dzięki temu każda ekipa pracuje na spójnych, jasnych wytycznych, co minimalizuje ryzyko błędów oraz przyspiesza tempo robót. Kompletny projekt techniczny to gwarancja, że dom zostanie zbudowany dokładnie tak, jak został zaprojektowany — solidnie, zgodnie z normami i bez niespodzianek na placu budowy. New-House zapewnia pełną obsługę tego etapu, dzięki czemu inwestor otrzymuje dokumentację gotową do natychmiastowego wdrożenia na budowie.
Po uzyskaniu pozwolenia na budowę, wykonaniu projektów technicznych może rozpocząć się budowa domu.

Budowa domu w New-House to w pełni uporządkowany, kompleksowy proces, prowadzony od pierwszych formalności aż do momentu, w którym inwestor może wprowadzić się do gotowego budynku. Po uzyskaniu pozwolenia na budowę przechodzimy do realizacji prac w terenie – zaczynając od fundamentów, izolacji i stanu surowego, a następnie wykonując dach, stolarkę okienną, instalacje i wszystkie prace konstrukcyjne. Każdy etap jest prowadzony w oparciu o projekt techniczny przygotowany przez nasze biuro projektowe, dzięki czemu zachowujemy pełną spójność między dokumentacją a wykonawstwem.W dalszej części inwestycji realizujemy prace instalacyjne: ogrzewanie, wentylację mechaniczną z rekuperacją, elektrykę, wodę i kanalizację, a także instalacje dodatkowe, takie jak fotowoltaika czy systemy inteligentnego domu. Po zamknięciu budynku prowadzimy etap wykończeniowy – tynki, wylewki, ocieplenie, elewację, a następnie pełne wykończenie „pod klucz”, obejmujące montaż drzwi wewnętrznych, parapetów, schodów, płytek, sanitariatów i wszystkich elementów niezbędnych do zamieszkania. New-House zapewnia również wykonanie ogrodu i zagospodarowania terenu, podjazdu, ogrodzenia oraz przygotowanie dokumentacji odbiorowej, dzięki czemu inwestor otrzymuje gotowy, kompletny dom wraz z terenem wokół. To kompleksowa obsługa całej inwestycji – od projektu i formalności, przez budowę, aż po finalny odbiór budynku do użytkowania. Dzięki temu cały proces jest szybki, spójny i w pełni bezpieczny.
Wybierz styl domu, a my znajdziemy dla Ciebie najlepszego architekta.


Masz wizję na projekt domu z architektem? A może dopiero jej szukasz? Bez względu na to, na jakim etapie się znajdujesz – jesteśmy tu, żeby pomóc Ci ją uporządkować, przeliczyć i... zaprojektować.Zespół New-House to wykonawcy i architekci, którzy naprawdę Cię wysłuchają, a potem zrobią wszystko, żeby Twoje „chciałbym” zmieniło się w konkret: gotowy projekt domu i realny plan budowy.Nie musisz wiedzieć wszystkiego. Wystarczy, że wiesz, że chcesz czegoś więcej niż gotowego schematu.
Resztą zajmiemy się my i przygotujemy dla Ciebie indywidualny projekt domu.Skontaktuj się z nami – najlepiej od razu z osobą, która odpowiada za cały proces.Robert Skulimowski to z jednej strony właściciel New-House – natomiast z drugiej człowiek, który od ponad 30 lat rozmawia i słucha klientów w temacie kompleksowej budowy domu wraz z projektem.Ma inżynierską precyzję, przedsiębiorcze zacięcie i wyjątkowe wyczucie potrzeb. Proces budowy domu zna cały – od pierwszej rozmowy po odbiór budynku – i chętnie przejdzie przez niego razem z Tobą.
Umów spotkanie na Google Meet
Nasi architekci przygotują kompletny projekt indywidualny oraz projekt budynku usługowego, a następnie zajmą się formalnościami związanymi z uzyskaniem pozwolenia na budowę domu. Znajdziemy dla Ciebie idealną działkę, a następnie zajmiemy się kompleksową budową domu od A do Z. Na cały zakres udzielamy 10 lat gwarancji. Zaufało nam już ponad 2500 klientów w ciągu 35 lat.
Dowiedz się więcej






















Opinie naszych klientów to najlepszy dowód
„Zdecydowaliśmy się na gotowy projekt, który wymagał jednak kilku modyfikacji. Architekt z New-House cierpliwie wysłuchał naszych sugestii i wprowadził niezbędne zmiany. Efekt końcowy przerósł nasze oczekiwania.”
Katarzyna i Piotr Wiśniewscy
„Współpraca z architektem firmy New-House była niezwykle owocna. Dzięki jego zaangażowaniu i profesjonalizmowi, udało się dostosować projekt do naszych indywidualnych potrzeb oraz specyfiki działki. Cały proces adaptacji przebiegł sprawnie i bezproblemowo.”
Anna i Michał Nowak


„Profesjonalne podejście architekta do adaptacji projektu zasługuje na szczególne wyróżnienie. Dzięki jego doświadczeniu i kreatywności, nasz dom stał się nie tylko funkcjonalny, ale i estetycznie dopracowany.”
Monika i Tomasz Zielińscy
„Proces adaptacji projektu był dla nas nowością. Dzięki wsparciu architekta z New-House czuliśmy się pewnie na każdym etapie. Jego zaangażowanie i dbałość o szczegóły były nieocenione.”
Ewa i Marcin Kowalscy
„Z czystym sumieniem możemy polecić firmę New-House wszystkim planującym budowę domu. Współpraca z firmą przebiegała bez problemów, od samego początku, czyli od wyceny prac i podpisania umowy, przez załatwiania formalności związanych z uzyskaniem pozwolenia na budowę, aż do stanu deweloperskiego. Z perspektywy czasu, możemy stwierdzić że cały proces budowy z firmą New-House, przebiegł bez większych problemów i zaoszczędził nam wielu stresów.”
Ilona Wilkowiecka i Filip Stojewski

„Współpraca z architektem przy adaptacji projektu przebiegła w miłej atmosferze. Jego otwartość na nasze pomysły i profesjonalne doradztwo sprawiły, że finalny projekt w pełni odpowiada naszym potrzebom.Współpraca z architektem przy adaptacji projektu przebiegła w miłej atmosferze. Jego otwartość na nasze pomysły i profesjonalne doradztwo sprawiły, że finalny projekt w pełni odpowiada naszym potrzebom.”
Agnieszka i Łukasz Nowiccy
Przeglądaj projekty

Władysławowo
Zobacz koszt projektu
Ursus

Piętrowy dom w Rembertowie
Zobacz koszt projektu
Piętrowy dom w Warszawie zaprojektowany przez architekta Zbigniewa Piśniaka

Warszawa Wawer

Ursynów
Wybór stylu domu to nie tylko kwestia estetyki - to także wybór architekta, który ten styl rozumie i potrafi go odpowiednio zrealizować.
Doradzimy. Skontaktuj się z nami.Umów termin spotkania na Google Meet. Rezerwacje są możliwe wyłącznie na kolejne dni robocze, w godzinach od 8:00 do 20:00. Na dziś zapisy nie są już dostępne.
1 godzina
Od poniedziałku do piątku
8:00 - 20:00
Google Meet
Chętnie odpowiemy na każde pytanie.
Zachęcamy do kontaktu.

W każdym województwie zrealizowaliśmy
czyjeś marzenie o własnym domu.
Po wypełnieniu formularza otrzymasz bezpłatną wycenę na swój adres e-mail
Aby oszacować koszty budowy domu, potrzebujemy następujących danych:
Parterowy
Z poddaszem
Piętrowy
Płaski
Dwuspadowy
Wielospadowy
Drewniany
Betonowy
Nie wiem
Na 1 auto
Na 2 auta
Bez garażu
Po wypełnieniu formularza otrzymasz bezpłatną wycenę na swój adres e-mail
Podaj swój adres e-mail, pod który wyślemy wycenę:
Twoja wycena jest już w drodze :)
Właśnie wysłaliśmy ją na Twój e-mail
W New-House budujemy domy pod klucz.
Zacznij od rozmowy z doświadczonym doradcą.
Czy chcesz zamówić bezpłatną konsultację telefoniczną?
Dziękujemy, Twoja wycena jest w trakcie realizacji.
W ciągu 5 minut otrzymasz ją na podany adres e-mail
Skontaktuj się z nami, chętnie odpowiemy na Twoje pytania.
Napisz:
kontakt@new-house.plProsimy o podanie w wiadomości e-mail: numeru telefonu, województwa oraz powierzchni planowanego domu
Są domy, których projekt kupuje się z katalogu. I są domy, które się projektuje na miarę potrzeb życia codziennego. Jako New-House od ponad 30 lat tworzymy indywidualne projekty domów nowoczesnych i klasycznych dla tych, którzy wiedzą, że dom to coś więcej niż ściany i dach. To przestrzeń, która ma funkcjonować dokładnie tak, jak chcesz.Działamy w całej Polsce i dobrze wiemy, że nasi klienci to osoby wymagające. Wiedzą, czego chcą i szukają zespołu, który potrafi to zrozumieć, zaplanować i zrealizować z dbałością o każdy detal. Szukają nas.
Projektujemy domy dla ludzi z pomysłem na życie – dla dużych rodzin, dla par z wizją, dla tych, którzy pracują zdalnie, ale marzą o oddzieleniu pracy od codzienności. Dla tych, którzy chcą mieć basen, garaż na trzy auta, zielony dach albo taras, który latem staje się drugim salonem. Tu ma być miejsce na rodzinne kolacje, na poranne treningi, na Twój gabinet z widokiem na ogród. Na strefę relaksu z książką. Na saunę, pracownię malarską, pokój dla nastolatka, który chce mieć własne studio nagrań.
Zespół naszych architektów tworzy projekty domów, które są w pełni dopasowane do Ciebie, przemyślane, funkcjonalne, spersonalizowane – po prostu jedyne w swoim rodzaju.
Ty mówisz, czego potrzebujesz. My zamienimy to w gotowy, funkcjonalny i indywidualny projekt domu – a potem w realny, solidny fundament.

Masz wizję na projekt domu z architektem? A może dopiero jej szukasz? Bez względu na to, na jakim etapie się znajdujesz – jesteśmy tu, żeby pomóc Ci ją uporządkować, przeliczyć i... zaprojektować.Zespół New-House to wykonawcy i architekci, którzy naprawdę Cię wysłuchają, a potem zrobią wszystko, żeby Twoje „chciałbym” zmieniło się w konkret: gotowy projekt domu i realny plan budowy.Nie musisz wiedzieć wszystkiego. Wystarczy, że wiesz, że chcesz czegoś więcej niż gotowego schematu. Resztą zajmiemy się my i przygotujemy dla Ciebie indywidualny projekt domu.
Skontaktuj się z nami – najlepiej od razu z osobą, która odpowiada za cały proces.Robert Skulimowski to z jednej strony właściciel New-House – natomiast z drugiej człowiek, który od ponad 30 lat rozmawia i słucha klientów w temacie kompleksowej budowy domu wraz z projektem.Ma inżynierską precyzję, przedsiębiorcze zacięcie i wyjątkowe wyczucie potrzeb. Proces budowy domu zna cały – od pierwszej rozmowy po odbiór budynku – i chętnie przejdzie przez niego razem z Tobą.
1 godzina
Od poniedziałku do piątku
8:00 - 20:00
Google Meet
Chętnie odpowiemy na każde pytanie.
Zachęcamy do kontaktu.
Bo jesteśmy firmą, która nie tylko buduje domy – my tworzymy przestrzeń do życia dopasowaną do Ciebie. Kupując gotowy projekt domu, nie masz wpływu na każdy szczegół i musisz dostosować się do założeń autora projektu. My robimy to odwrotnie – w New-House dopasowujemy projekt do Ciebie.
Mamy za sobą ponad trzy dekady rozmaitych doświadczeń, rozmów z klientami, rozwiązywania trudnych wyzwań i realizacji marzeń – często bardzo odważnych. Naszą największą dumą jest zgrany, lojalny zespół. Wielu pracowników buduje z nami od 15, 20, a nawet 25 lat. Dzięki temu wiemy, jak działać sprawnie, jak komunikować się z klientem i jak dostarczać jakość, którą naprawdę widać.
U nas możesz mieć pewność, że:
Właścicielem New-House jest inż. Robert Skulimowski, absolwent Politechniki Warszawskiej i pasjonat budownictwa z duszą przedsiębiorcy. To on stoi za rozwojem firmy od 1991 roku. Z wielkim zaangażowaniem dba każdy szczegół, każdy zespół, każdy projekt. Dla niego to nie jest wyłącznie biznes. To pasja – i widać to w każdym domu, który oddajemy do użytku.
Jeśli szukasz partnera, który zapewni obsługę od A do Z – zaprojektuje Twój dom i pomoże Ci go kompleksowo zrealizować z sercem, precyzją i odpowiedzialnością, to jesteś we właściwym miejscu do zakupu projektu domu parterowego lub z poddaszem użytkowym.
„Ile kosztuje projekt domu u architekta?” – to jedno z najczęstszych pytań, które zadają nam klienci zaintersowani budową domu na indywidualne zamówienie – i nic dziwnego. W końcu od tego wszystko się zaczyna. Dlatego zamiast ogólników, podamy konkretne przykłady realizacji, które możesz sprawdzić na naszej stronie. Projektowanie domów przez architektów współpracujących z New-House poprzedza indywidualna wycena, ale już dziś możesz zobaczyć, ile kosztuje gotowy projekt domu na indywidualne zamówienie.
| Zakres | Koszt brutto |
|---|---|
| Cena projektu | 28 500 PLN |
| Stan surowy | 746 410 PLN |
| Prace deweloperskie | 1 370 140 PLN |
| Pod klucz | 1 578 040 PLN |
| Pod klucz z ogrodem | 1 648 040 PLN |
| Zakres | Koszt brutto |
|---|---|
| Cena projektu | 55 000 PLN |
| Stan surowy | 1 462 075 PLN |
| Prace deweloperskie | 3 494 984 PLN |
| Pod klucz | 3 881 984 PLN |
| Pod klucz z ogrodem | 4 026 984 PLN |
* Podane ceny są aktualne na dzień 02.04.2025 r. Koszty mogą się różnić w zależności od lokalizacji, technologii, materiałów oraz indywidualnych rozwiązań projektowych.
Jeśli chcesz poznać wstępną wycenę swojego konceptu, zanim przejdziesz do projektowania domu przez architekta – odezwij się do nas. Wystarczy kilka informacji, a przygotujemy dla Ciebie bezpłatną kalkulację wstępną. Możesz też skorzystać z dostępnego na naszej stronie kalkulatora budowy domu – uzupełnij podstawowe dane, a otrzymasz wycenę z naszego biura architektów na wskazany adres e-mail.
Z naszych doświadczeń jasno wynika – jeśli planujesz budowę powyżej 300 m², projekt indywidualny domu to optymalne rozwiązanie. Gotowe rozwiązania rzadko spełniają potrzeby wymagających inwestorów, szczególnie przy nietypowych działkach lub skomplikowanych warunkach zabudowy. Często dochodzą tu specyficzne oczekiwania: dom z częścią biurową, podziemnym garażem, basenem, strefą relaksu, przestrzenią dla gości czy rozbudowanym zapleczem technologicznym.
| Powierzchnia użytkowa | Cena za m² | Przykładowy koszt projektu |
|---|---|---|
| Do 300 m² | 100–150 zł / m² | 30 000 – 45 000 zł |
| Powyżej 300 m² | 150–200 zł / m² | 45 000 – 60 000 zł |
Projekt dzieli się na dwa etapy:
Każdy projekt jest inny. Każda działka, każda rodzina, każda wizja. Ale niezależnie od stylu, metrażu czy lokalizacji – jest coś, co u nas w New-House nigdy się nie zmienia: solidne fundamenty oparte na jakości. Budowane przez nas domy powstają z materiałów sprawdzonych, trwałych i po prostu niezawodnych. To one zapewniają spokojny sen na lata – bez pękających ścian, niespodziewanych napraw i kosztownych poprawek. Wykorzystujemy m.in.:
DACH. W ostatnich latach wielu inwestorów wybiera płaskie stropodachy – eleganckie, nowoczesne, dzięki którym możesz w pełni wykorzystać bryłę budynku. To rozwiązanie idealne do projektów o prostej, geometrycznej formie, ale również do domów z tarasami na dachu lub zielonymi ogrodami. Z drugiej strony, dachy spadziste – wciąż bardzo popularne – doskonale sprawdzają się na terenach o trudniejszych warunkach pogodowych. Wybór należy do Ciebie. My doradzimy Ci w tej kwestii, biorąc pod uwagę zarówno estetykę, jak i funkcjonalność.
PIWNICA. W przypadku działek o wysokim poziomie wód gruntowych lub szczególnych wymaganiach terenowych coraz częściej projektujemy piwnice w technologii „białej wanny”. To specjalna konstrukcja betonowa, która skutecznie chroni przed wilgocią. Niezależnie od warunków, możesz bez obaw zagospodarować tę przestrzeń na domową siłownię, strefę relaksu lub pomieszczenia gospodarcze.
ENERGOOSZCZĘDNOŚĆ. Od 2021 roku wszystkie nowe budynki muszą spełniać określone normy energooszczędności. Zgodnie z Warunkami Technicznymi (WT 2021), wskaźnik EP (energia pierwotna) dla domu jednorodzinnego nie może przekraczać 70 kWh/(m²·rok).
W praktyce oznacza to:
U nas te standardy to codzienność. Projektujemy domy energooszczędne, które spełniają aktualne przepisy i są przygotowane na przyszłość!
Proces budowy domu to nie jeden krok – jest ich znacznie więcej. Najważniejszym etapem jest ten, od którego wszystko się zaczyna i to niezależnie od tego, czy chodzi o projekt gotowy, czy ten na indywidualne zamówienie. Mowa o dobrze ułożonym planie, w którym wszystko ma swoje miejsce i czas. Dzięki doświadczeniu naszego zespołu cały harmonogram jesteśmy w stanie zrealizować w sposób przewidywalny i uporządkowany, nawet przy większych inwestycjach. A brak opóźnień to Twój spokój.
To czas intensywnej współpracy z naszym architektem. Rozmawiamy, szkicujemy, dopasowujemy rozwiązania do Twoich potrzeb i działki. Powstaje koncepcja, a potem precyzyjny projekt architektoniczno-budowlany. Wszystko odbywa się w pełnym kontakcie – na bieżąco masz wpływ na każdą decyzję.
Zajmujemy się kompletowaniem dokumentów i składaniem wniosków. Każda gmina działa nieco inaczej, ale dzięki naszemu doświadczeniu i znajomości urzędowych procedur, cały proces przebiega sprawnie. Ty nie musisz się niczym martwić.
9 miesięcy to realny i sprawdzony czas realizacji projektu zagospodarowania terenu i budowy obiektu z ogrodem i ogrodzeniem, w przypadku domu o powierzchni ok. 400 m². Na budowie działa nasz stały, zgrany zespół, który dba o jakość, terminy i porządek na każdym etapie.
Od lat współpracujemy z cenionymi architektami, którzy słuchają, myślą nieszablonowo i wiedzą, jak przełożyć pomysł na praktyczne, piękne i trwałe rozwiązania. Dzięki nim każdy projekt budowlany zyskuje ten jedyny w swoim rodzaju charakter – i szansę, aby stać się dokładnie tym domem, o jakim marzysz. Wśród naszych partnerów można wymienić profesjonalistów takich jak:
Dzięki takiej sieci kontaktów możemy dopasować styl projektowania do Twoich oczekiwań – niezależnie do tego, czy marzysz o nowoczesnej bryle z betonu i szkła, czy o klasycznej rezydencji z kolumnami i ogrodem w stylu angielskim.
Dom o powierzchni 400 m² na skarpie z widokiem na jezioro? A może 150-metrowy parterowy dom z piwnicą, sauną i płaskim dachem? Takie inwestycje wymagają indywidualnego podejścia i dokładnego zapoznania się z miejscowym planem zagospodarowania przestrzennego – i właśnie w tym jesteśmy najlepsi.
Od lat projektujemy i budujemy domy na terenie całej Polski – od nadmorskich działek na Półwyspie Helskim, przez zakamarki Mazur, aż po górskie zbocza w Beskidach. W tym czasie zrealizowaliśmy ponad 2 500 projektów, a setki opinii i referencji naszych klientów mówią zgodnie, że można nam zaufać – od pierwszego szkicu do ostatniego detalu w ogrodzie.
Niektóre z projektów były łatwe, inne natomiast wymagały od naszej ekipy precyzyjnego planowania na trudnym terenie, przy skomplikowanych warunkach zabudowy, w miejscach, gdzie liczy się każdy metr działki – i każda strona dokumentacji.
Zajrzyj dokaruzeli z przykładowymi projektami i zobacz, co już stworzyliśmy – być może coś Cię zainspiruje. A jeśli masz w głowie coś zupełnie innego – to jeszcze lepiej. Porozmawiajmy o tym.
Indywidualny projekt domu różni się ceną i zależy od metrażu budynku – i wynosi od 100–150 zł/m² (do 300 m²) oraz 150–200 zł/m² (powyżej 300 m²).
W przypadku domu 189 m² – od 1,57 mln zł, a domu o powierzchni 430 m² – od 3,88 mln zł. Koszty zależą od technologii, lokalizacji, indywidualnych rozwiązań i wykończenia.
Projektowanie – ok. 3 miesiące, uzyskanie pozwolenia – 2 miesiące, budowa pod klucz (400 m²) – ok. 9 miesięcy.
Indywidualny projekt domu łączy w sobie wiele zalet. Warto się na niego zdecydować, ponieważ uwzględnia Twoje potrzeby, działkę, styl życia i wymagania wszystkich domowników.
Projekt architektoniczny do pozwolenia na budowę + projekty techniczne: konstrukcja, elektryka, instalacje, ewentualnie gaz. Całość zgodna z obowiązującymi normami.
Już na etapie koncepcji w New-House weryfikujemy rozwiązania z kosztami – możesz kontrolować budżet na bieżąco i dopasować projekt do możliwości finansowych.
Stan surowy, deweloperski, wykończenie pod klucz, zagospodarowanie terenu i ogrodu. Możesz wybrać zakres – my zajmiemy się wszystkim, łącznie z formalnościami.
Kompletem dokumentów i formalności zajmujemy się New-House za Ciebie. Średni czas uzyskania pozwolenia to ok. 2 miesiące – w zależności od gminy.
Jeden kontakt, jedna odpowiedzialność, stała ekipa, przewidywalny harmonogram i pełna gwarancja. To mniej stresu i większe bezpieczeństwo inwestycji.
Udzielamy 10-letniej gwarancji na wszystkie wykonane przez nas prace – od fundamentów po dach, ogród i ogrodzenie